HUNZIKER

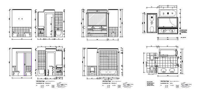
IRénovation de l’hôtel Beau-Rivage à Genève


Chargé du dossier d'exécution et de l’étude des détails de construction
Pour le bureau Jacques Bugna & Florian Barro
2002-2003






HUNZIKER